Homes for Sale in Sarasota Florida

BUILDING LEVEL 2

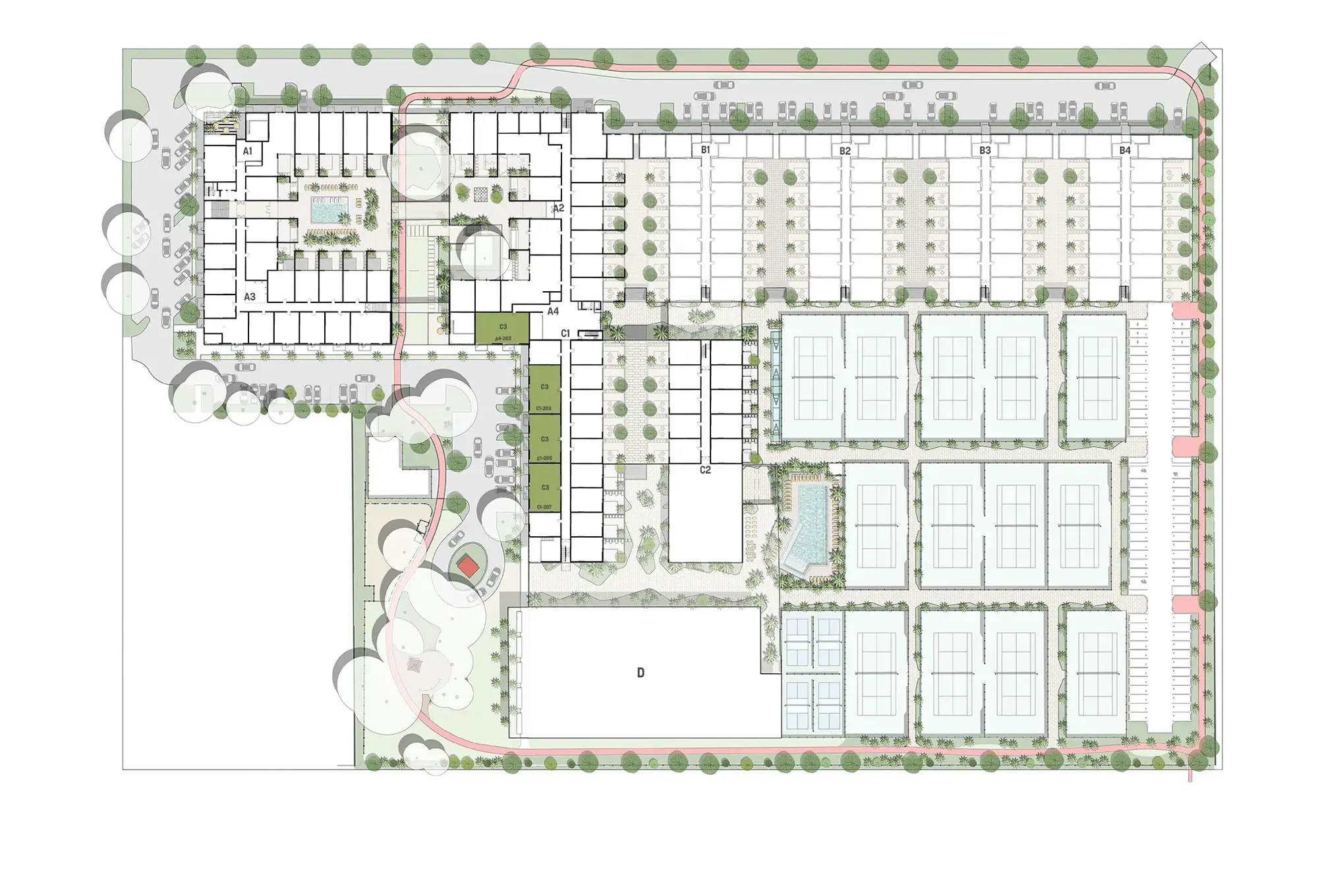
Back to Unit Plans
New condo development in Sarasota - unit plan c3 level 2 available

BUILDING LEVEL 3

Back to Unit Plans
New condo development in Sarasota - unit plan c3 level 3 available

BUILDING LEVEL 4

Back to Unit Plans
New condo development unit plan c3 level 4 in Sarasota

Contact Us Today!

Unit layouts, square footage and dimensions are approximate and subject to normal construction variances and tolerances. Not all items depicted in artist’s rendering are included. Sponsor reserves the right to make changes in accordance with Offering Plan.

For marketing and advertising purposes, square footages of units are determined by measuring from the exterior surface of all exterior walls, and the center of all boundary walls shared with other units and common elements of the condominium. The square footage of the Unit as defined under the Condominium Declaration is measured from the finished and undecorated interior surfaces of the perimeter walls of the Unit as shown on the Condominium Plot Plan, and the planes of the exterior surfaces of the Unit’s windows, doors, and other openings that abut the exterior of the building or Common Elements, including Limited Common Elements such as balconies, terraces or patios. Contact your B&R sales representative for the complete list of floorplans and availability.

Our Foundation
The Press

Follow Us

info@bathracquet.com

2025 © All rights reserved Bath + Racquet Residences – Sarasota, Florida

Data Privacy | Disclosure & Legal | Terms of Use